Si, si, han leído bien, doble climatización. No se sorprendan, con las cámaras modulares hay muchas opciones tanto de estructura, como de ampliación, como de tener distintos compartimentos en una misma cámara. Si lo quisieran, se podrían montar su propia casa con los paneles frigoríficos de las cámaras de forma fácil y económica.
En este blog les vamos a contar las dos posibilidades que más nos piden para tener cámaras frigoríficas 2x1. Les detallaremos como es sus estructuras y que ventajas/desventajas tiene cada una.
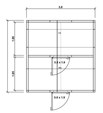
Cámara frigorífica de 2 climatizaciones con 2 accesos.
No hace falta tener mucha imaginación de cómo se montan estas cámarar frigoríficas. Tendremos las dos cámaras con sus respectivas puertas de acceso y compartiendo una de sus paredes.
En caso que quieran una cámara frigorífica para congelación y la otra para refrigeración, el tamaño de los paneles tendrá que ser de congelación (mínimo de 100mm de espesor).
¿Por qué esto?
Si no fuese así, el suelo y el techo no encajarían bien con toda la estructura al ser unos paneles más gruesos que los otros.
Ventajas y desventajas:
Tener un acceso individualizado para cada cámara puede ser una desventaja si se dispone de poco espacio. Si el espacio disponible solo permite poner las 2 puertas y equipos en la misma cara de la cámara, puede que no sea viable este montaje por falta de espacio.
Por otra parte, al tener las cámaras individualizadas, no tendrá que pasar por una habitación para acceder a la otra cada vez que quiera coger algo. Esto puede significar a la larga menos costes en energía de sus equipos.
Cámara frigorífica con 2 climatizaciones y 1 acceso.
Al igual que el otro modelo, si quiere una climatización de conservación y la otra de congelación deberán utilizar el panel más grueso (congelación 100mm mínimo) para que el techo y suelo encajen.
Y, al igual que el otro montaje, van a compartir una pared con la diferencia que también compartirán sus accesos (puertas).
En efecto, este diseño de cámara modular refrigerada solo tiene una sola puerta de acceso a su interior, y dentro de la primera cámara habrá una segunda puerta para acceder a la siguiente cámara con la climatización distinta.
Ventajas y desventajas.
Uno de sus desventajas, como se imaginarán, es que cada vez que quieran acceder a la 2ª cámara, tendrán que pasar por la 1ª.
A demás, para evitar que la 2ª puerta haga el “vacío”, y no se pueda abrir durante un rato (igual que pasaba con las neveras del hogar), hay que ponerle una válvula de compensación de presión (no son muy caras).
Como una de sus ventajas destacaremos que con este modelo solventaremos el problema de poner 2 puertas en sitios complicados.
También, y si uno de los equipos es suficientemente potente, en caso de avería podría refrigerar las 2 cámaras simplemente dejando abierta la puerta de su interior, evitando la pérdida de sus productos.
¿Qué sectores profesionales utilizan estos diseños de cámaras refrigeradas?
En hostelería se utilizan mucho las cámaras de conservación y congelación. En restaurantes antiguos o pequeños, estas soluciones les van de maravilla.
También las pastelerías y las panaderías pueden utilizar cámaras frigoríficas de doble climatización.
Pero no siempre se necesita una doble cámara para congelar y conservar, también hay sectores que necesitan simplemente diferentes temperaturas y humedades en climas positivos, como el mundo vinícola o el de las hortalizas, flores y plantas.
Conclusiones:
Como han visto, hay muchas posibilidades con las cámaras modulares refrigeradas. Tamaños, habitaciones, puertas, climas,…,. Tienen que conocer el material y a partir de allí diseñar su cámara frigorífica ideal.
